LakeView 3 - Available for Pre Sale

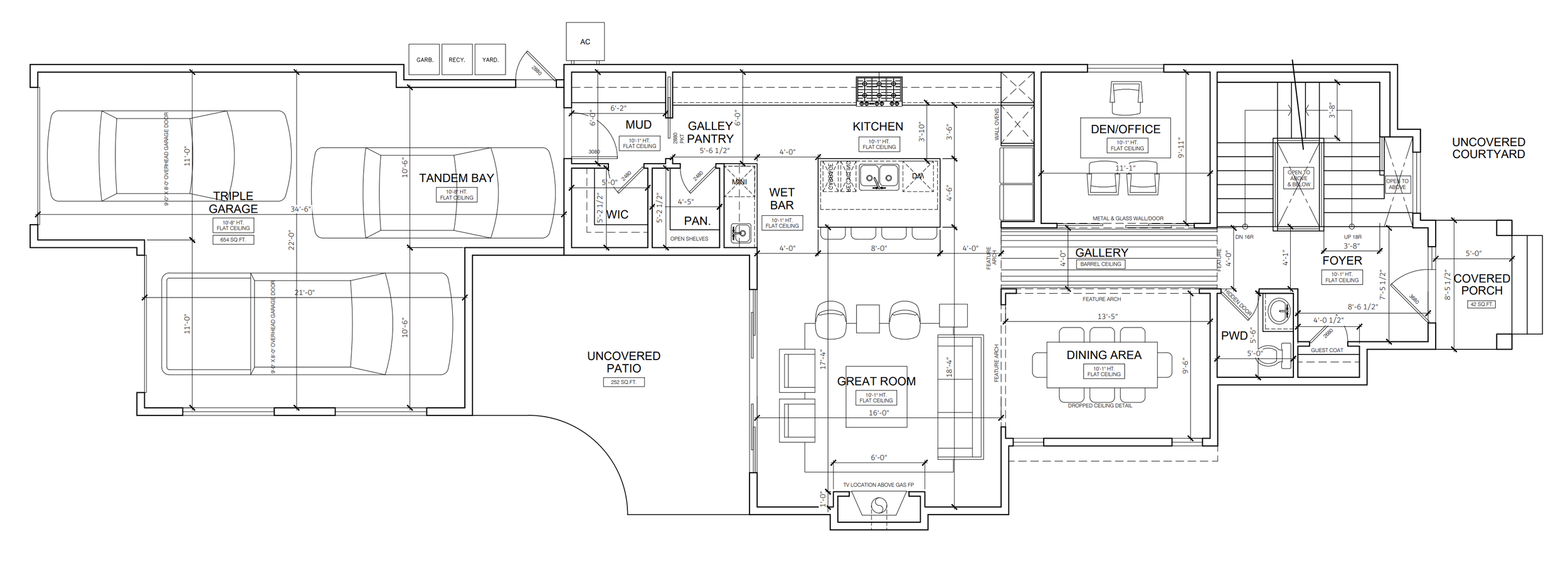
This striking modern residence at 5407 Ladbrooke Drive SW showcases architectural balance, warm tones, and meticulous detailing throughout. The home delivers 2,508 sq. ft. above grade and an additional 1,031 sq. ft. of developed basement area, offering 4 bedrooms and 4.5 bathrooms across three levels.

The main floor features 10-foot ceilings, a spacious living area with a feature fireplace, and a designer kitchen complemented by a butler’s pantry for added functionality. A private office/study room provides the perfect workspace, while a covered front entry enhances the home’s inviting curb appeal.

The upper floor includes three ensuite bedrooms, highlighted by a primary suite with a walk-in closet and a spa-inspired ensuite. A laundry room ensures functionality and ease for family living.

The finished basement is designed for entertainment and leisure, featuring a wet bar, recreation room, gym, and a fourth bedroom with a full bathroom. Completing the home is an attached triple garage, offering ample space for vehicles and storage.

With its warm earth-toned exterior, elegant textures, and thoughtfully designed spaces, 5407 Ladbrooke Drive SW embodies modern luxury and lasting craftsmanship, true to the Platinum Build Homes standard.

Size
2508 Sqft Living Space

Bathrooms
4.5

Bedrooms
4 Bedrooms | 3 Ensuites

Previous
Previous

Lakeview 2 - Available for Pre Sale

Next
Next

Springbank | Morning Vista